Our services
0 & 1 -Strategic Definition, Preparation & Brief
Clarifying what you want to achieve (budget, timescale, feasibility, whether it’s worth doing).
Developing the brief in detail: requirements, budget, surveys, and appointing consultants.
Stage 2 - Concept Design
Initial design ideas and layout options, often used for early planning discussions.
Stage 3 – Spatial Coordination
The preferred design is developed and coordinated with structure and services; usually the planning application stage.






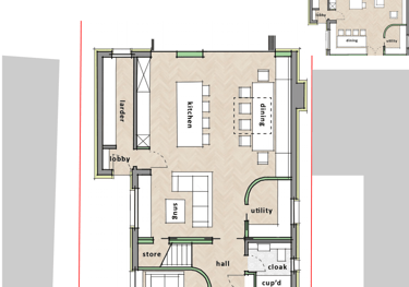
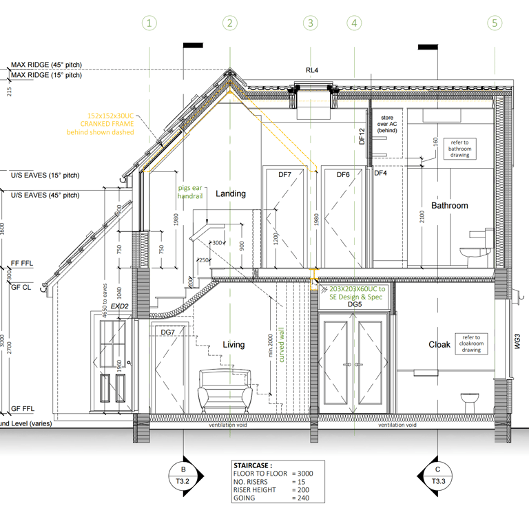
Stage 4 – Technical Design
Detailed drawings and specifications so the builder can price and construct the project.
Stage 5 – Manufacturing and Construction
The building work on site, with the architect inspecting progress and quality.




Stage 6 – Handover & Stage 7 – In Use
Completion of the works, snagging, certificates, & information for using the building.
Living in the home, with post-completion review and advice on maintenance or future changes.


Better built together
We approach all our projects collaboratively with our clients. It’s our aim to turn your imagination into reality, which is why we include you in the design and construction process from the very start. We believe that the best buildings are those which are built for someone to love, not just to use.






